(Ру) РЕКУПЕРАТОР КАНАЛЬНЫЙ ВЕНТИЛЯТОРНЫЙ (РКВ)
Рекуператор относится канальным вентиляционным установкам с встроенным вентилятором и теплообменником, предназначен для энергоэффективного воздухообмена в системах приточно-вытяжной вентиляции. Применяется в административных зданиях, производственных помещениях, учебных и медицинских учреждениях.

(Ру) Рекуператор канальный вентиляторный РКВ — комплектное устройство для реализации приточно-вытяжной вентиляции с одновременной утилизацией тепловой энергии удаляемого воздуха. Аппарат обеспечивает передачу тепла между вытяжным и приточным потоками, снижая затраты на отопление и кондиционирование и повышая энергоэффективность помещения.
Основные элементы и комплект поставки
- Корпус из стали с антикоррозионным покрытием для прочности и долговечности.
- Теплообменный блок для эффективной передачи тепла между потоками.
- Встроенные приточный и вытяжной вентиляторы, рассчитанные на номинальный расход воздуха.
- Сменный фильтр для очистки приточного воздуха от пыли и механических примесей.
- Электроуправление с датчиками и автоматикой для безопасной и экономичной работы.
- В комплекте поставляются монтажные элементы, паспорт изделия и гарантийные документы.
Назначение и условия эксплуатации
- Предназначен для жилых, коммерческих и промышленных вентиляционных систем с требованием рекуперации тепла.
- Подключается к воздуховодам здания и интегрируется с существующими системами ОВиК.
- Эксплуатация в агрессивной среде, содержащей вещества, разрушающие материалы или покрытия, не допускается.
- Перед монтажом и вводом в эксплуатацию необходимо ознакомиться с паспортом конкретной модели для уточнения температурных и монтажных ограничений.
Преимущества заказа у ООО «Jihozvent» в Ташкенте
- Комплексное исполнение “под ключ”: консультации, проектирование, изготовление, доставка по Узбекистану, монтаж и пусконаладка.
- Контроль качества производителя: собственное производство и многоступенчатая проверка.
- Соблюдение сроков и гарантия качества монтажных и пусконаладочных работ.
- Конкурентные цены и индивидуальные условия для оптовых и постоянных клиентов.
(Ру)
Пример обозначения:
РКВ
♦ Р – Рекуператор
♦ К- Канальный
♦ В – Вентиляторный
(Ру)
| РКВ-038 | |
| Производительность кондиционера по воздуху на притоке и вытяжке, м³/ч при 0 Па | 380 |
| Производительность кондиционера по воздуху на притоке и вытяжке, м³/ч при 100 Па | 250 |
| Общая потребляемая мощность, Ватт | 160 |
| Напряжение питания электродвигателя вентилятора, В | 220 |
| Рабочая частота тока, Гц | 50 |
| Общий вес изделия, кг | 38 |
| Состав рекуператора канального вентиляторного | |
| Приточная часть, Вытяжная часть | |
| Секция вентилятора | LIONBALL 190. 2шт |
| 70 Ватт, 2300 об/мин | |
Аэродинамические характеристики

| РКВ-060 | |
| Производительность кондиционера по воздуху на притоке и вытяжке, м³/ч при 0 Па | 600 |
| Производительность кондиционера по воздуху на притоке и вытяжке, м³/ч при 100 Па | 400 |
| Общая потребляемая мощность, Ватт | 250 |
| Напряжение питания электродвигателя вентилятора, В | 220 |
| Рабочая частота тока, Гц | 50 |
| Общий вес изделия, кг | 43 |
| Состав рекуператора канального вентиляторного | |
| Приточная часть, Вытяжная часть | |
| Секция вентилятора | LIONBALL 220. 2шт |
| 100 Ватт, 2500 об/мин | |
Аэродинамические характеристики

| РКВ-075 | |
| Производительность кондиционера по воздуху на притоке и вытяжке, м³/ч при 0 Па | 750 |
| Производительность кондиционера по воздуху на притоке и вытяжке, м³/ч при 100 Па | 500 |
| Общая потребляемая мощность, Ватт | 350 |
| Напряжение питания электродвигателя вентилятора, В | 220 |
| Рабочая частота тока, Гц | 50 |
| Общий вес изделия, кг | 44 |
| Состав рекуператора канального вентиляторного | |
| Приточная часть, Вытяжная часть | |
| Секция вентилятора | LIONBALL 225. 2шт |
| 150 Ватт, 2600 об/мин | |
Аэродинамические характеристики

| РКВ-110 | |
| Производительность кондиционера по воздуху на притоке и вытяжке, м³/ч при 0 Па | 1100 |
| Производительность кондиционера по воздуху на притоке и вытяжке, м³/ч при 100 Па | 800 |
| Общая потребляемая мощность, Ватт | 500 |
| Напряжение питания электродвигателя вентилятора, В | 220 |
| Рабочая частота тока, Гц | 50 |
| Общий вес изделия, кг | 52* |
| Состав рекуператора канального вентиляторного | |
| Приточная часть, Вытяжная часть | |
| Секция вентилятора | LIONBALL 250. 2шт |
| 220 Ватт, 2500 об/мин | |
Аэродинамические характеристики

| РКВ-150 | |
| Производительность кондиционера по воздуху на притоке и вытяжке, м³/ч при 0 Па | 1500 |
| Производительность кондиционера по воздуху на притоке и вытяжке, м³/ч при 100 Па | 900 |
| Общая потребляемая мощность, Ватт | 600 |
| Напряжение питания электродвигателя вентилятора, В | 220 |
| Рабочая частота тока, Гц | 50 |
| Общий вес изделия, кг | 62 |
| Состав рекуператора канального вентиляторного | |
| Приточная часть, Вытяжная часть | |
| Секция вентилятора | LIONBALL 280. 2шт |
| 270 Ватт, 2500 об/мин | |
Аэродинамические характеристики

(Ру)
| РКВ1-160 | |
| Производительность кондиционера по воздуху на притоке и вытяжке, м³/ч при 0 Па | 1600 |
| Производительность кондиционера по воздуху на притоке и вытяжке, м³/ч при 300 Па | 1500 |
| Общая потребляемая мощность, Ватт | 450 |
| Напряжение питания электродвигателя вентилятора, В | 220 |
| Рабочая частота тока, Гц | 50 |
| Общий вес изделия, кг | … |
| Состав рекуператора канального вентиляторного | |
| Приточная часть | |
| Секция вентилятора | Yilida SYZ 7-7 I (200W-4). 2шт |
| 200 Ватт, 1150 об/мин. | |
| Вытяжная часть | |
| Секция вентилятора | Yilida SYZ 7-7 I (200W-4) 0,2кВт 1150 об/мин. 2шт |
| 200 Ватт, 1150 об/мин | |
Аэродинамические характеристики

| РКВ1-260 | |
| Производительность кондиционера по воздуху на притоке и вытяжке, м³/ч при 0 Па | 2600 |
| Производительность кондиционера по воздуху на притоке и вытяжке, м³/ч при 300 Па | 2000 |
| Общая потребляемая мощность, Ватт | 950 |
| Напряжение питания электродвигателя вентилятора, В | 220 |
| Рабочая частота тока, Гц | 50 |
| Общий вес изделия, кг | 110 |
| Состав рекуператора канального вентиляторного | |
| Приточная часть, Вытяжная часть | |
| Секция вентилятора | Yilida SYZ 9-9 I (450W-4).2шт |
| 450 Ватт, 1150 об/мин | |
Аэродинамические характеристики

| РКВ1-310 | |
| Производительность кондиционера по воздуху на притоке и вытяжке, м³/ч при 0 Па | 3100 |
| Производительность кондиционера по воздуху на притоке и вытяжке, м³/ч при 300 Па | 2500 |
| Общая потребляемая мощность, Ватт | 1150 |
| Напряжение питания электродвигателя вентилятора, В | 220 |
| Рабочая частота тока, Гц | 50 |
| Общий вес изделия, кг | 134 |
| Состав рекуператора канального вентиляторного | |
| Приточная часть, Вытяжная часть | |
| Секция вентилятора | Yilida SYZ 10-10I(550W-4).2шт |
| 550 Ватт, 1200 об/мин | |
Аэродинамические характеристики

| РКВ1-400 | |
| Производительность кондиционера по воздуху на притоке и вытяжке, м³/ч при 0 Па | 4000 |
| Производительность кондиционера по воздуху на притоке и вытяжке, м³/ч при 300 Па | 3000 |
| Общая потребляемая мощность, Ватт | 1550 |
| Напряжение питания электродвигателя вентилятора, В | 220 |
| Рабочая частота тока, Гц | 50 |
| Общий вес изделия, кг | … |
| Состав рекуператора канального вентиляторного | |
| Приточная часть, Вытяжная часть | |
| Секция вентилятора | Yilida SYZ 12-12I(750W-6). 2шт |
| 750 Ватт, 900 об/мин | |
Аэродинамические характеристики

(Ру)
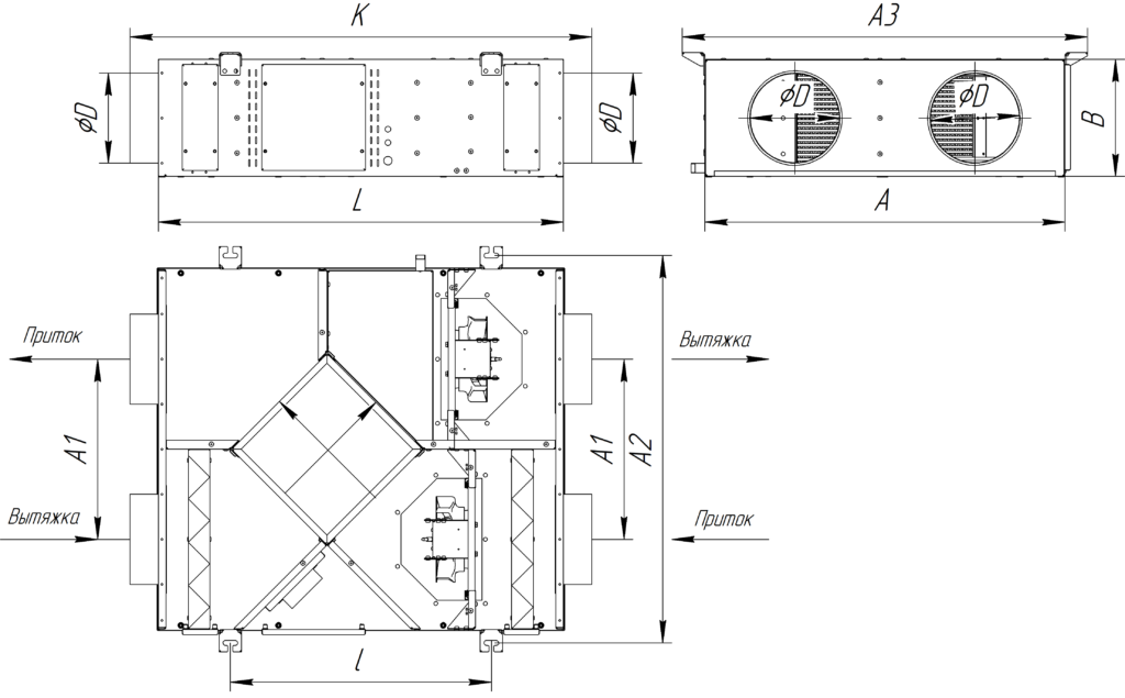
РКВ

| Размеры | |||||||||
| Наименование | А, мм | В, мм | L, мм | А1, мм | А2, мм | А3, мм | D, мм | L, мм | K, мм |
| РКВ-038 | 800 | 260 | 900 | 400 | 860 | 900 | 200 | 580 | 1030 |
| РКВ-060 | 800 | 330 | 900 | 400 | 860 | 900 | 250 | 580 | 1030 |
| РКВ-075 | 800 | 330 | 900 | 400 | 860 | 900 | 250 | 580 | 1030 |
| РКВ-110 | 900 | 330 | 1100 | 450 | 960 | 1000 | 250 | 730 | 1240 |
| РКВ-150 | 900 | 430 | 1100 | 450 | 960 | 1000 | 355 | 730 | 1240 |
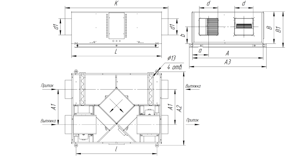
РКВ1

| Размеры | |||||||||||||
| Наименование | А, мм | В, мм | L, мм | А1, мм | А2, мм | А3, мм | B1, мм | a, мм | b, мм | d, мм | d1, мм | L, мм | K, мм |
| РКВ1-160 | 800 | 500 | 1100 | 395 | 860 | 900 | 525 | 183 | 230 | 220 | 200 | 965 | 1300 |
| РКВ1-260 | 1000 | 500 | 1400 | 550 | 1150 | 1200 | 560 | 252 | 263 | 288 | 255 | 1260 | 1600 |
| РКВ1-310 | 1200 | 500 | 1600 | 595 | 1250 | 1300 | 560 | 297 | 306 | 320 | 283 | 1430 | 1800 |
| РКВ1-400 | 1400 | 600 | 2000 | 688 | 1450 | 1500 | 660 | 340 | 358 | 383 | 333 | 1860 | 2200 |
(Ру) Наш менеджер свяжется с вами в ближайшее время.
➥ (Ру) Скачать каталог - 1➥ (Ру) Скачать каталог - 2